(InEDC) Cris Alacon, EL DORADO HILLS Sept 28 2023 – Winn Communities has reintroduced Creekside Village, a residential development consisting of 918 homes, after a previous proposal for industrial use of the land south of the El Dorado Hills Business Park was withdrawn earlier this year. Following the abandonment of the industrial project, the focus has now shifted back to housing for the undeveloped southern section of the El Dorado Hills Business Park.
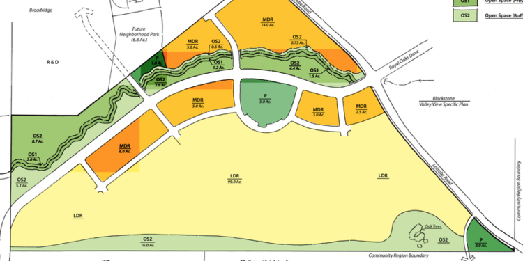
County officials have scheduled a scoping meeting this week to discuss Creekside Village, which is planned for 208 acres of land situated west of Latrobe Road in El Dorado Hills.
Winn Communities’ Vice President, George Carpenter, has dedicated the past six to nine weeks to engage in discussions with residents of neighboring communities regarding the most suitable proposal. Carpenter stated that in response to the community’s feedback, they are proposing the inclusion of a small commercial site, spanning less than 2 acres. Consequently, the number of homes in Creekside Village will be reduced by eight compared to the previous proposal. Other aspects of the project largely resemble those proposed approximately four years ago, with a mix of conventional and smaller single-family homes. At that time, Winn Communities expressed their focus on providing homes that would cater to first-time buyers or those looking to downsize. Carpenter revealed that the project is still in its early stages but emphasized the importance of maintaining transparency throughout the entitlement process with neighboring residents.
Earlier this year, Dermody Properties put forth a proposal for Project Frontier, an industrial development spanning 4 million square feet, on the same site. However, due to opposition from local residents regarding traffic concerns and secrecy surrounding the potential tenant, which was widely speculated to be Amazon, Dermody Properties withdrew the project in May. This then paved the way for the return of the Creekside Village proposal. Carpenter mentioned that the property for the project was de-annexed from the business park five years ago because commercial development seemed unlikely at the time.
Additionally, the site is predominantly surrounded by residential areas, including a similar project called Heritage to the west. Carpenter added that the land is conveniently flat, in close proximity to existing infrastructure, and has minimal environmental constraints, making it ideal for housing development. Looking ahead, Carpenter expressed his hope for substantial community support for Creekside Village by the time it reaches the approval stage, which is anticipated to be in late 2024. However, he acknowledged that realistically, the project is unlikely to commence construction until 2026 at the earliest.









